Etta 14,9 m²
Stuga
Njuta från Vibostugan är en traditionell modell med sadeltak som smälter in i de flesta miljöer som lämpar sig utmärkt som hemmakontor eller gäststuga.
Det gedigna attefallshuset är producerat i Ambjörnarp i Västergötland och endast svenskt virke har använts vid tillverkningen.
Genom att bygga ett attefallshus på tomten kan du enkelt skapa ditt egna kontor när du vill jobba hemifrån eller om du ska starta egen verksamhet! Oavsett vilken variant du väljer av Njuta hemmakontor, så får du ett personligt utrymme där du jobbar ostört men ändå nära familjen. Plats för pentry, toalett och kanske en mysig sittgrupp? Ja, tack!
Stugan levereras som monteringssats med färdiga väggmoduler och gavelspetsar. Det medföljer råspont och underlagspapp till taket samt golvspånskivor. Vid leverans är alla delar obehandlade och måste grundoljas samt grund- och täckmålas innan användning. Detta gäller även fönster och dörr.
Med byggsatsen följer en utförlig byggbeskrivning, steg för steg, hur du på bästa sätt bygger ihop din stuga. Är du händig klarar du det med våra instruktioner. Annars kanske det behövs en erfaren snickare till hjälp.
Observera
Om du under en längre period kommer att ha en större temperaturskillnad än 18 grader mellan in och utsida bör en ytterdörr monteras på stugan. Dörrkonstruktionen ska då vara garanterad att klara formstabiliteten vid de förutsättningarna. Skulle det däremot vara så att man värmer upp stugan/förrådet för någon dag under de kallaste perioderna så är det inte någon fara.
Observera! Plåtsats ingår när du väljer plåttak till stugan
Takshingel – takshingeln har klisterkant vilket innebär en enkel och tät montering. I paketet ingår pappspik. Fotplåt ingår ej.
Plåttak – ena sidan monteras med hjälp av en klickfunktion och den andra fästs med skruv. Taket läggs direkt ovanpå underlagspapp. Komplett takavvattning medföljer i detta paket.
| Varumärke | Vibostugan |
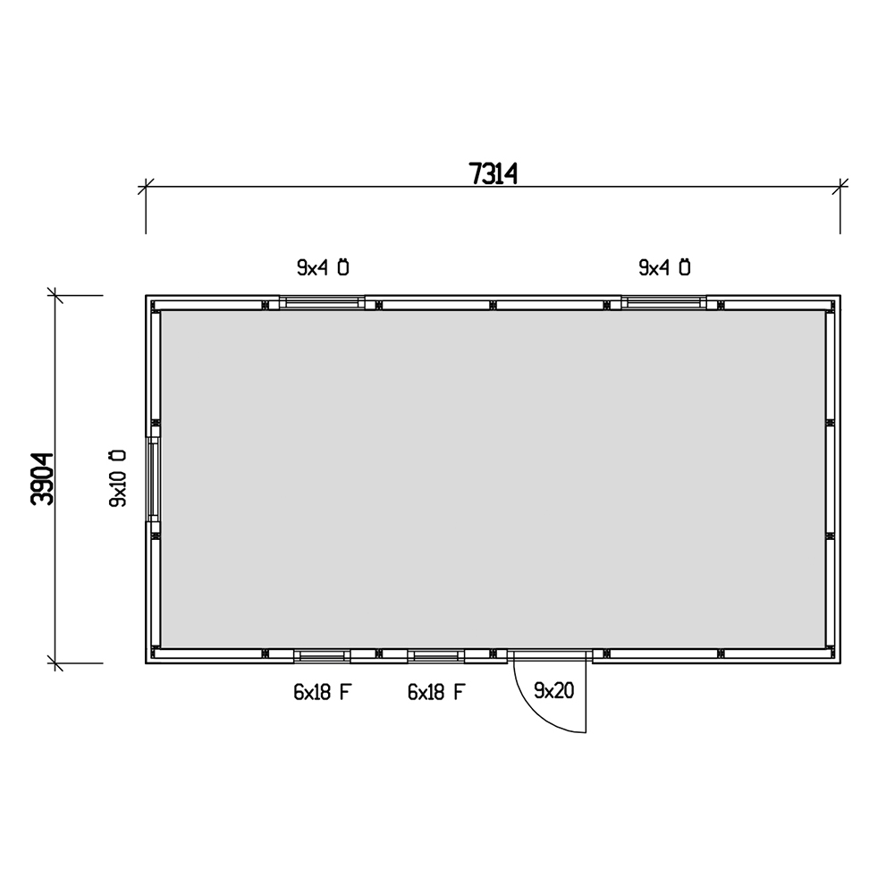
| Yttermått | 7314 x 3904 mm |
| Vägghöjd | 2375 mm |
| Total höjd | 3546 mm |
| Taklutning | 25° |
| Takyta | 39,6 m² |
| Snözon | 3,5 |
| Garanti | Se köpvillkor |